実際に行われた設計図書の一部を抜粋したものです。
デザイン・設計者を目指す学生や若い人の参考になれば幸いです。
RC耐震補強図面 Is値を0.6以上とした耐震補強設計
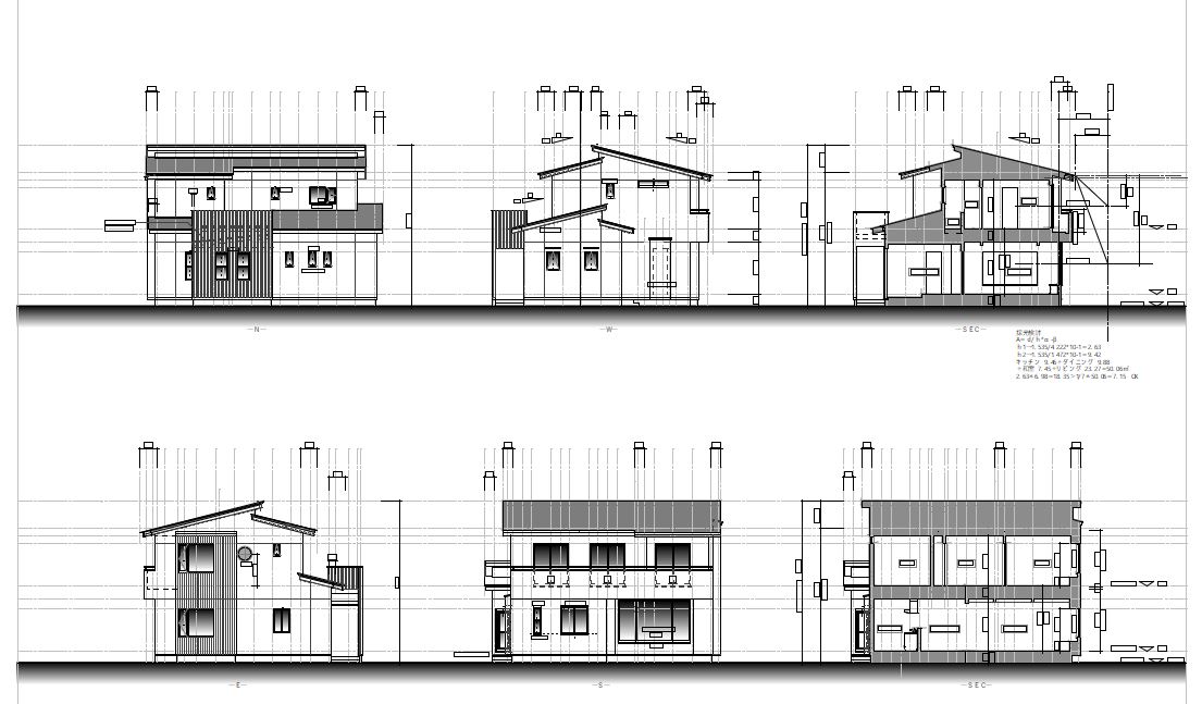
木造2階建立面、断面図-新築H30
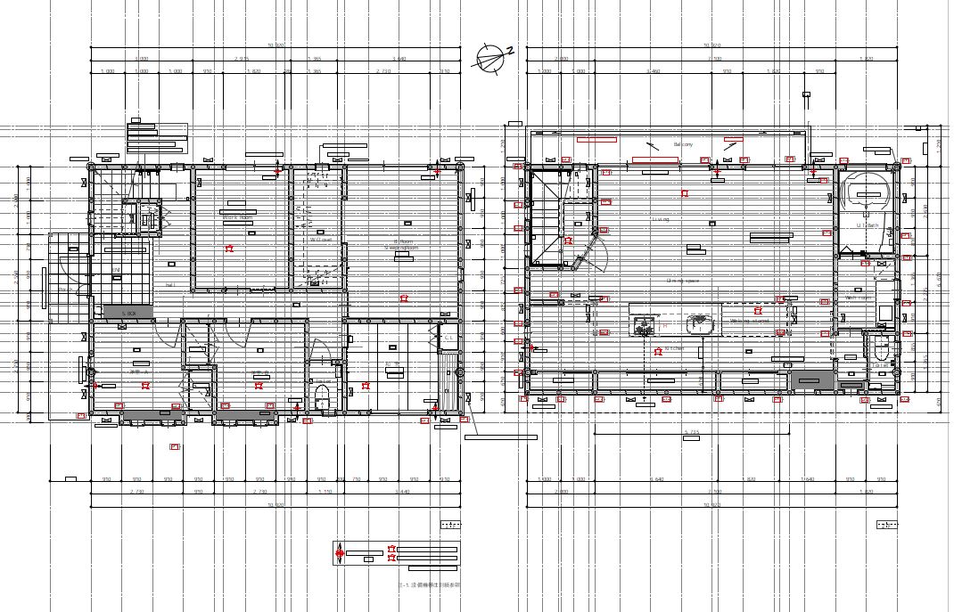
木造2階建平面図
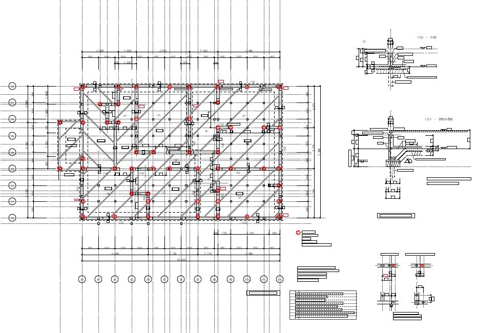
木造2階建-地盤調査の結果鋼管杭を基礎補強の為に設置する、基礎伏図は筋交い計算と共に必ず書かなければならない重要なもので有る。
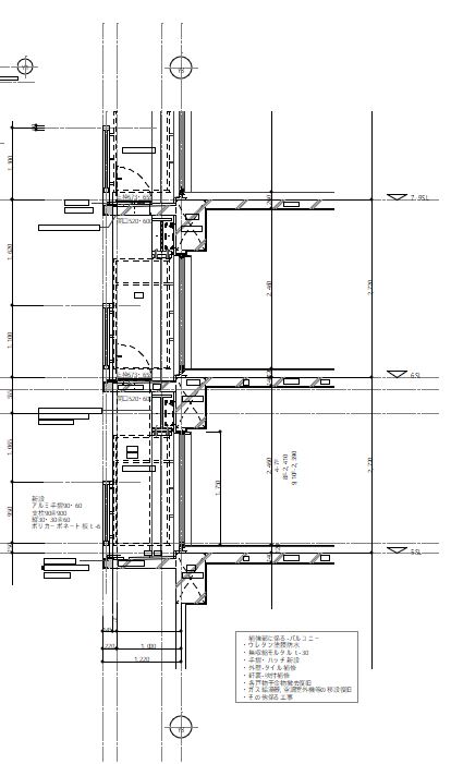
木造平屋の矩計図-基礎はべた基礎-新築
古い木造2階建の改築
小住宅併用店舗

(出来うる範囲で順次掲載いたします。)
息抜きに、楽しく旅行に出かけてみましょう!女子teamが作成しました。







